No items found.
Modular Homes

The Walden Stack

Starts From

400000

Beds

3

Baths

3

Size (sq.ft)

1200

Move in Ready

What this place offers

3
Bedroom
Bedrooms
8
Sleep Capacity
3
Bathroom
Half Bath
Wet Bath
Bar
Kitchenette
Full Kitchen
1200
Sq ft
lbs
48
ft Length
15
ft Width
ft Height
Patio | Deck
Porch
Pantry
Carport Optional
Mini Split AC
Window ac
Portable ac
HVAC
Wooden stove
Electric baseboard
Propane Heater
Furnace
Oven
Refrigerator
Stove | Range
Washer & Dryer
Full Size Appliances
Compact Size Appliances
Full size & compact size appliances
No items found.
Direct Water Hookup
Water Tank
Rainwater collection
Composting Toilet
Standard Septic
Direct Sewer Hookup
No items found.
Backyard ADU
Mobile Home park
Urban
Rural
No items found.

About the

The Walden Stack

Welcome to the Walden Stack a modern retreat where thoughtful design meets natural beauty. Nestled in nature, this unique modular home offers panoramic mountain views, sun-filled spaces, and seamless indoor-outdoor living.

More than a home, the Walden Stack is a sanctuary designed for those who value simplicity, comfort, and a deeper connection to the world around them.

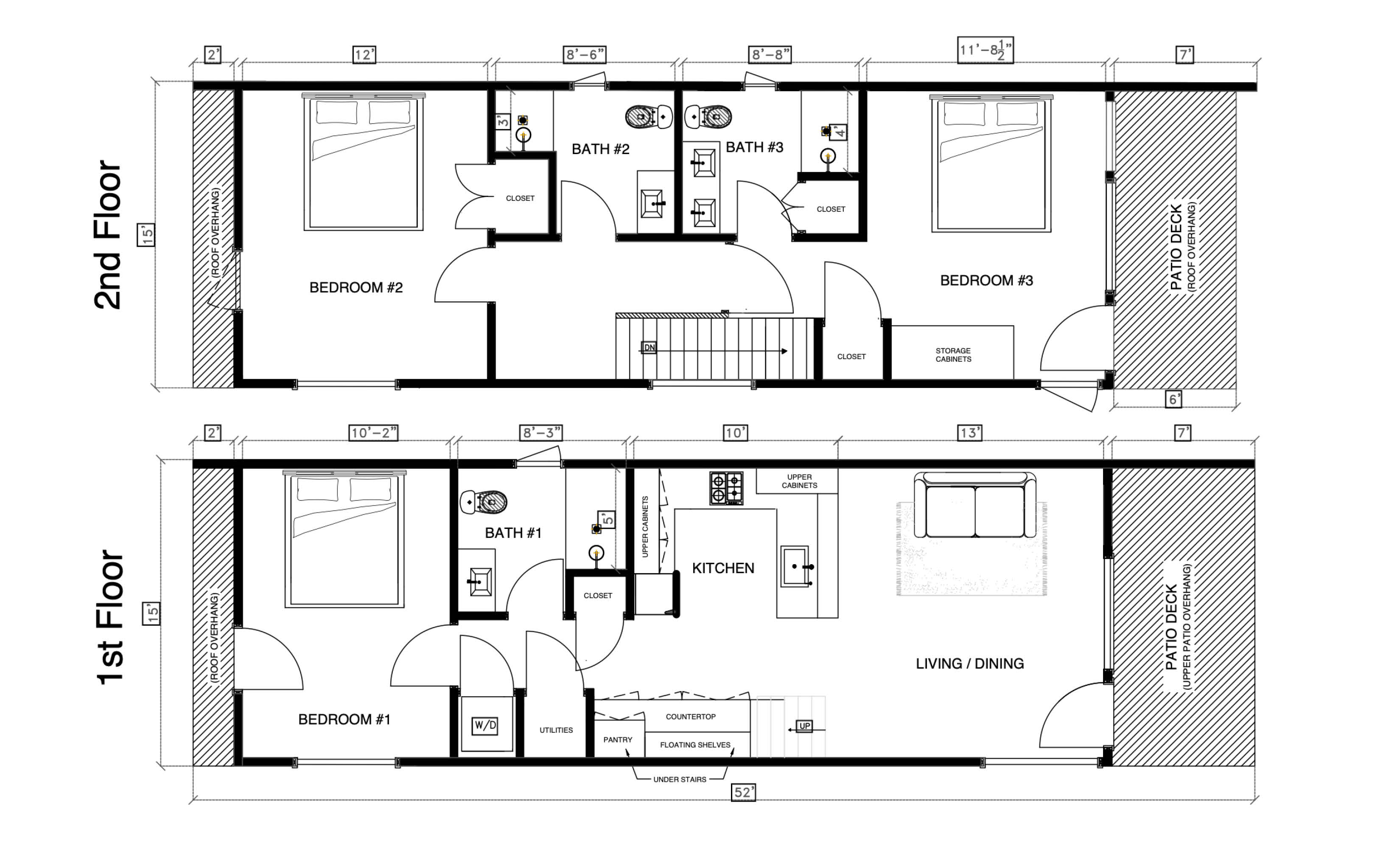
Layout & Floor plan

No items found.

Specifications

  • 15’ x 48’ – 1200 finished sq. ft.
  • Certified Modular
  • 2 Single Wide Modules for a fast and simple set
  • Full Glass Wall in Master suite and Living Room
  • Double 7’ Deck – Composite deck boards with black aluminum railing
  • Metal Roof: 28 Gauge 40 Year Textured Black Heritage Panel (Standing Seam Replica)
  • Siding: Mixture of Stained and Raw Incense Cedar
  • 2/12 Roof Pitch
  • Closed cell Spray Foam Insulation with R-value to exceed local codes.
  • 1 36” Entry/Exit door in living room.
  • 1 36” Entry/Exit door in 1st floor bedroom.
  • 1 36” Entry/Exit door in 2nd floor bedroom.
  • Black operating windows interior and exterior.

  • 3 Bedrooms 3 Baths
  • 1×8 Painted Nicklegap Wall coverings
  • Drywalled ceilings
  • Luxury Vinyl Plank Flooring Throughout.
  • Flat Shaker style Interior Doors.
  • Recessed Lights Throughout.

  • Shaker Style Painted Kitchen Cabinets
  • Quartz Or Laminate Countertop Options
  • Black Kitchen Fixtures
  • Floor to ceiling Closet In Hallway Closet Prepared for stackable Washer and Dryer

  • 30” Stainless Steel Range Hood
  • Space for 30” 20 Cu. Ft. Fridge

  • 1-60” Tub with Fiberglass base in 1st floor Bathroom with option of wet wall, or tile surround, and glass surround
  • 1-48” Shower in Master Bathroom with option of Wet wall, or Tile Shower surround, and Glass Surround
  • 1 36” Shower in 2nd Bathroom with option of Wet wall, or Tile Shower surround, and Glass Surround
  • 3 Custom Vanities

Take a tour of

The Walden Stack

About the manufacturer

Zook Cabins

Founded in 2006, Zook Cabins began with a simple dream: to make log cabin living more accessible, efficient, and enjoyable. The Zook family recognized that traditional cabin builds could be time-consuming, stressful, and costly so they set out to change that experience for their customers.

From those early days, Zook Cabins has grown into a trusted name in modular log cabins, delivering high-quality homes to satisfied customers across the country. Rooted in strong values, exceptional craftsmanship, and outstanding customer service, this Amish cabin builder remains committed to helping people turn their dream of owning a log cabin into reality.

Get pricing & availability for this home

Tell us about your needs, and we’ll match you with the best homes on the market.
Dropdown

Do you own land?

Are you interested in Financing options?

Thanks!

A ModelTown representative or partner will be in touch shortly.

Oops! Something went wrong while submitting the form.

Get pricing & availability for this home

Tell us about your needs, and we’ll match you with the best homes on the market.

Similar Models

SkyLoft a Modular Home ADU by BoxHouse | ModelTown
Featured
Linden Cabin a Modular home ADU by Field + Fold | ModelTown
Featured
Sage Cabin a Modular Home ADU by Field + Fold | ModelTown
Featured
Carport Optional
Patio | Deck
Porch
Pantry
Oven
Refrigerator
Stove | Range
Washer & Dryer
No items found.
No items found.