Saturna 7 a Modular Home by Hewing Haus | ModelTown
Saturna 7 a Modular Home by Hewing Haus | ModelTown
Saturna 7 a Modular Home by Hewing Haus | ModelTown
Saturna 7 a Modular Home by Hewing Haus | ModelTown
Saturna 7 a Modular Home by Hewing Haus | ModelTown
No items found.
Modular Homes

Saturna 7

Starts From

280000

Beds

2

Baths

1

Size (sq.ft)

700

Move in Ready

What this place offers

2
Bedroom
Bedrooms
6
Sleep Capacity
1
Bathroom
Half Bath
Wet Bath
Bar
Kitchenette
Full Kitchen
700
Sq ft
lbs
30
ft Length
30
ft Width
ft Height
No items found.
No items found.
Mini Split AC
Window ac
Portable ac
HVAC
Wooden stove
Electric baseboard
Propane Heater
Mini Split Heat Pump
Furnace
Dishwasher
Microwave
Oven
Refrigerator
Stove | Range
Washer | Dryer Optional
Full Size Appliances
Compact Size Appliances
Full size & compact size appliances
No items found.
Direct Water Hookup
Water Tank
Rainwater collection
Composting Toilet
Standard Septic
Direct Sewer Hookup
No items found.
Backyard ADU
Mobile Home park
Urban
Rural
No items found.

About the

Saturna 7

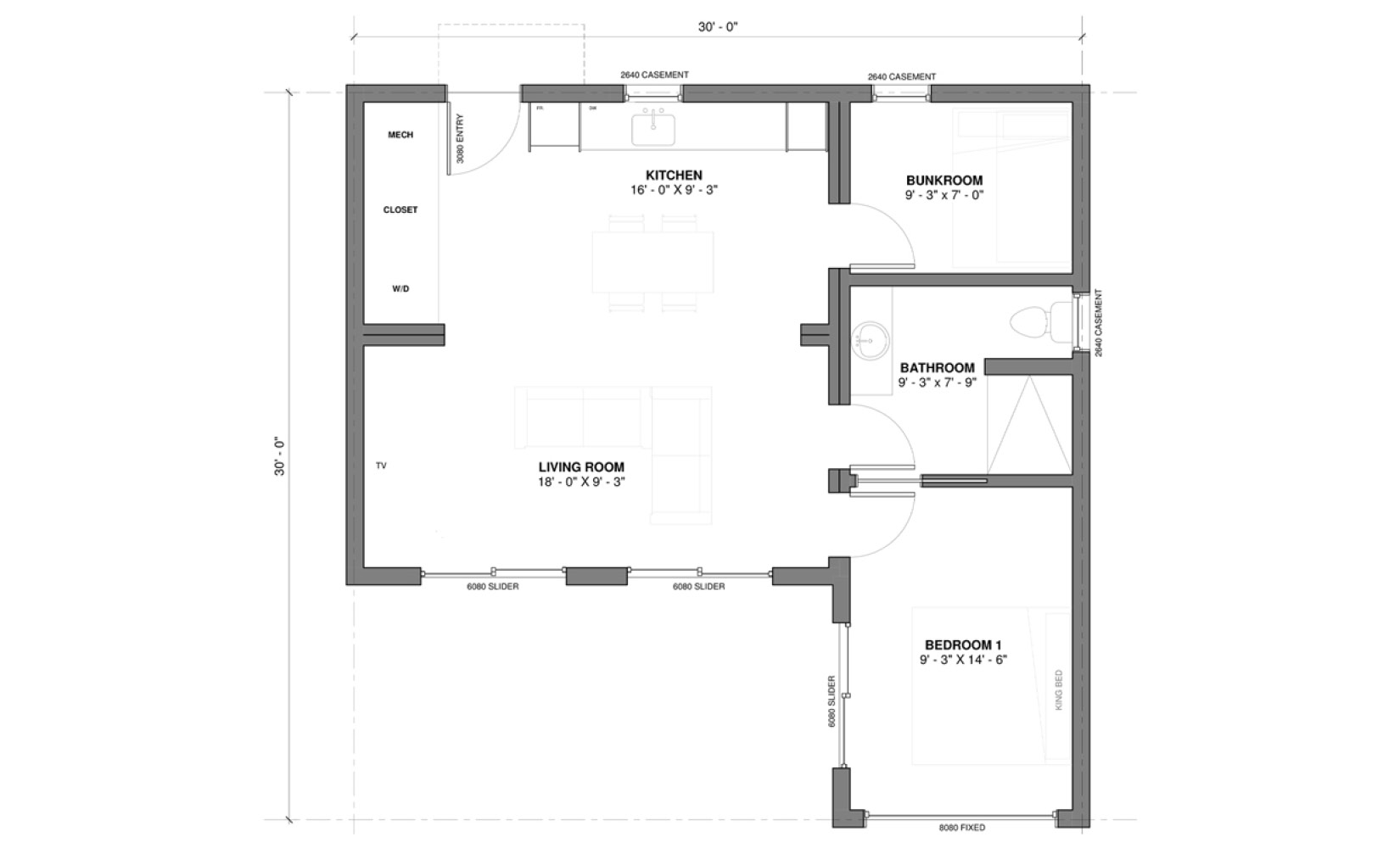
The Saturna 7 is a 700 sq ft modular home designed for modern, energy-efficient living. With two bedrooms, an open-concept living area, and abundant natural light, this home balances comfort, sustainability, and contemporary design.

Built with cross-laminated timber (CLT) flooring, high-performance insulation, and CSA A277 certification, the Saturna 7 is a durable, high-quality turnkey solution perfect as a primary residence, guest home, or vacation retreat.

Layout & Floor plan

No items found.

Specifications

  • Cedar vertical cladding with metal awning above entry door
  • CLT (Cross-Laminated Timber) flooring and wall system for structural strength and insulation
  • Large 8-foot window and sliding glass doors in master bedroom
  • Two 8-foot sliding glass doors in living room for abundant natural light
  • High-efficiency windows and doors throughout
  • CSA A277 Certified construction
  • Environmentally friendly interior and exterior insulation
  • Modern, low-maintenance design with clean architectural lines
  • Open-concept living area with vaulted ceilings and two 8-foot sliding glass doors
  • Large master bedroom with 8-foot sliding door and oversized window
  • Second bedroom or flex space for office, guest, or studio use
  • Large three-piece bathroom
  • Premium hardwood flooring and minimalist detailing throughout
  • Integrated storage and custom millwork for optimized space
  • Eco-friendly insulation inside and out
  • Full-size kitchen with custom cabinetry and included appliances
  • Expansive countertops with premium finishes and modern lighting
  • Seamless connection to dining and living areas for open flow
  • Efficient design with optimized storage and prep space
  • Optional: Breakfast bar
  • Electric cooktop
  • Hood vent
  • Dishwasher
  • Oven / microwave combo
  • Refrigerator and freezer
  • Electric hot-water tank
  • Optional: Washer-dryer combo
  • Optional: Energy-efficient built-in ventilation system
  • Optional: Smart-home ready appliance options
  • Electric heating system
  • LED lighting throughout
  • Environmentally friendly insulation and airtight envelope
  • High-efficiency windows and doors
  • Optional: Solar or off-grid upgrade packages
  • Large three-piece tiled bathroom with glass-enclosed shower
  • Modern fixtures and designer finishes
  • Optional: Soaking tub and double vanity upgrade
  • Bright, spa-inspired atmosphere with natural materials
  • Take a tour of

    Saturna 7

    About the manufacturer

    Hewing Haus

    Hewing Haus was founded on the principle that better‑built homes can be delivered faster and more sustainably. With a background of decades in high‑end custom construction, the team turned their expertise to modular design prefabricating homes in a controlled environment to minimize delays, waste and disruption. Each home is crafted with renewable materials, advanced building systems, and contemporary aesthetics, offering clients a turnkey solution that blends form and function. Today, Hewing Haus continues to innovate in the prefab market, creating stylish, efficient homes that respond to modern living needs while upholding high standards of craftsmanship and sustainability.

    Get pricing & availability for this home

    Tell us about your needs, and we’ll match you with the best homes on the market.
    Dropdown

    Do you own land?

    Are you interested in Financing options?

    Thanks!

    A ModelTown representative or partner will be in touch shortly.

    Oops! Something went wrong while submitting the form.

    Get pricing & availability for this home

    Tell us about your needs, and we’ll match you with the best homes on the market.

    Similar Models

    SkyLoft a Modular Home ADU by BoxHouse | ModelTown
    Featured
    Linden Cabin a Modular home ADU by Field + Fold | ModelTown
    Featured
    Sage Cabin a Modular Home ADU by Field + Fold | ModelTown
    Featured
    No items found.
    No items found.
    Dishwasher
    Microwave
    Oven
    Refrigerator
    Stove | Range
    Washer | Dryer Optional
    No items found.
    No items found.