
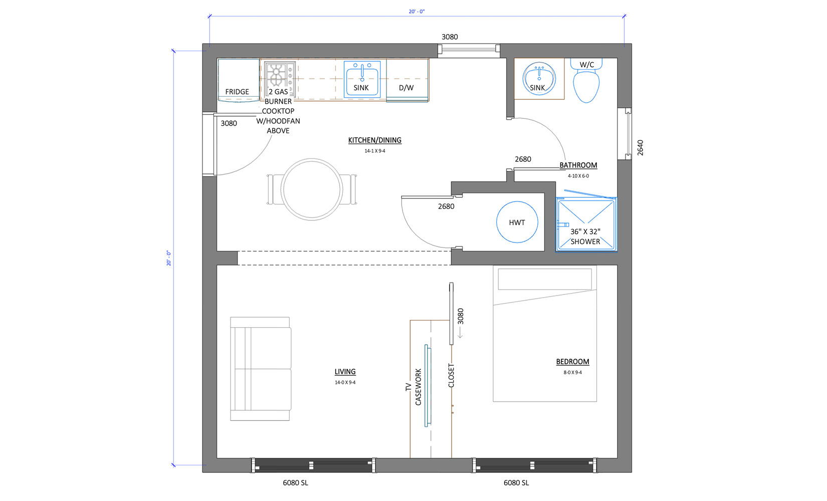
The Quadra 4 is a sleek 400 sq ft modular home designed for efficient modern living. Featuring one bedroom, a spacious living room with an 8-foot sliding glass door, bright natural light and premium finishes, this home maximizes comfort in a compact footprint.
Built with cross-laminated timber (CLT) flooring, CSA A277 certification, and high-performance insulation, the Quadra 4 provides a turnkey, sustainable solution ideal for a guest suite, ADU or minimalist primary home.
Hewing Haus was founded on the principle that better‑built homes can be delivered faster and more sustainably. With a background of decades in high‑end custom construction, the team turned their expertise to modular design prefabricating homes in a controlled environment to minimize delays, waste and disruption. Each home is crafted with renewable materials, advanced building systems, and contemporary aesthetics, offering clients a turnkey solution that blends form and function. Today, Hewing Haus continues to innovate in the prefab market, creating stylish, efficient homes that respond to modern living needs while upholding high standards of craftsmanship and sustainability.
A ModelTown representative or partner will be in touch shortly.