
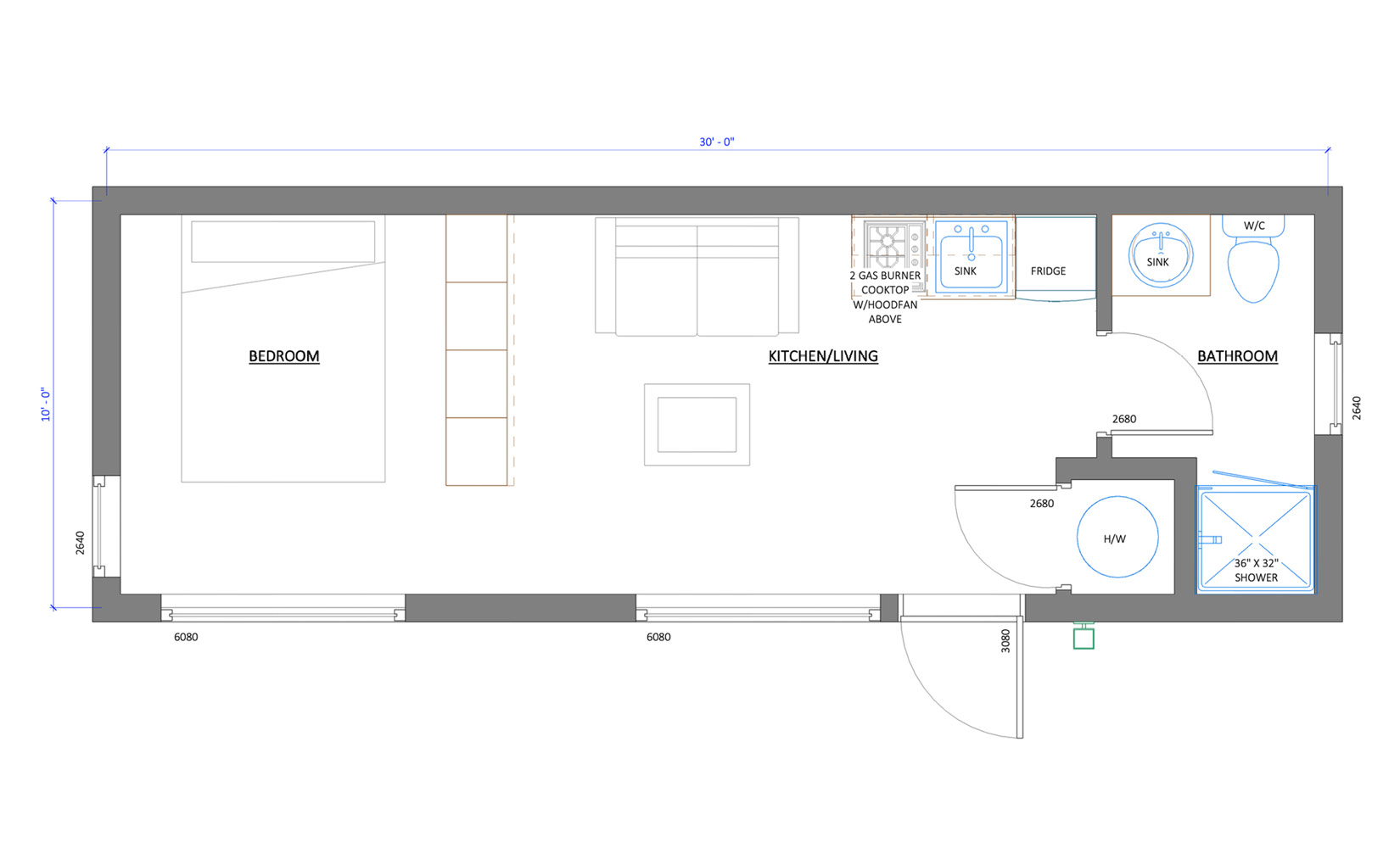
The Pender 3 is a thoughtfully designed 300 sq ft modular home that brings together efficiency and modern comfort. Featuring a full bedroom, open living/kitchen area with large glazing, and premium construction materials, this home makes compact living feel expansive and refined.
Built with cross-laminated timber (CLT) flooring, high-efficiency windows and doors, CSA A277 certification, and sustainable insulation inside and out, the Pender 3 delivers quality, performance and style in a minimal footprint.
Hewing Haus was founded on the principle that better‑built homes can be delivered faster and more sustainably. With a background of decades in high‑end custom construction, the team turned their expertise to modular design prefabricating homes in a controlled environment to minimize delays, waste and disruption. Each home is crafted with renewable materials, advanced building systems, and contemporary aesthetics, offering clients a turnkey solution that blends form and function. Today, Hewing Haus continues to innovate in the prefab market, creating stylish, efficient homes that respond to modern living needs while upholding high standards of craftsmanship and sustainability.
A ModelTown representative or partner will be in touch shortly.