
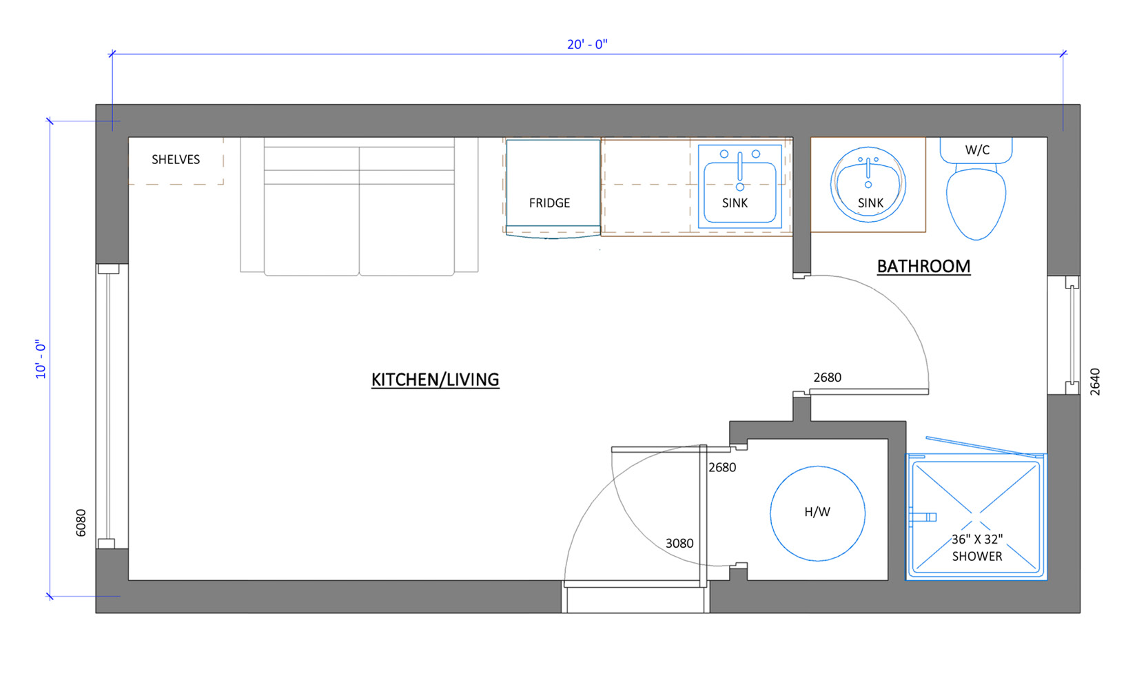
The Nootka 2 is a compact 200 sq ft modular home that delivers a full living experience in a minimalist footprint. Featuring one bedroom, an open kitchen/living area with large glazing, and premium sustainable finishes, it’s perfect as a guest suite, studio, or efficient primary home. It’s built using cross-laminated timber (CLT), factory-certified to CSA A277 standards, and designed for durability, sustainability and style.
Hewing Haus was founded on the principle that better‑built homes can be delivered faster and more sustainably. With a background of decades in high‑end custom construction, the team turned their expertise to modular design prefabricating homes in a controlled environment to minimize delays, waste and disruption. Each home is crafted with renewable materials, advanced building systems, and contemporary aesthetics, offering clients a turnkey solution that blends form and function. Today, Hewing Haus continues to innovate in the prefab market, creating stylish, efficient homes that respond to modern living needs while upholding high standards of craftsmanship and sustainability.
A ModelTown representative or partner will be in touch shortly.